7.1.1 发电厂和变电站(或换流站)的建(构)筑物抗震设防类别应按表7.1.1确定,各设防类别建(构)筑物的抗震设防标准,均应符合现行标准《建筑工程抗震设防分类标准》GB 50223中3.0.3的要求。

注:规模较小的乙类建筑,当采用抗震性能较好的结构体系时,允许按丙类建筑设防。
7.1.2 电力设施中的建(构)筑物应根据设防分类、烈度、结构类型和结构高度采用不同的抗震等级,并应符合相应的计算和构造措施要求。电力设施中丙类建筑的抗震等级应按表7.1.2确定。

注: 1 表中高度指室外地面至檐口的高度(不包括局部突出屋面部分)。
2 高度接近或等于高度分界时,应允许结合建(构)筑物的不规则程度及场地、地基条件确定抗震等级。
3 大跨度框架指跨度不小于18m的框架。
4 表中运煤廊道是指廊道支柱采用钢筋混凝土结构或钢结构。
5 当运煤廊道跨度大于24m时,抗震等级应再提高-级。
6 设置少量抗震墙的钢筋混凝土框架-抗震墙结构,在规定的水平力作用下,底层框架部分所承担的地震倾覆力矩大于结构总地震倾覆力矩的50%时,其框架部分的抗震等级应按表中框架对应的抗震等级确定,适用的最大高度应允许比框架适当增加。
7.1.3 电力设施中的建(构)筑物地震作用和结构抗震验算,应符合现行标准《建筑抗震设计规范》GB 50011的有关规定。
7.1.4 当抗震设防烈度为6度时,除本规范有具体规定外,对乙、丙、丁类建筑(不包括规定抗震设防烈度6 度区要提高1度设防的电力设施)可不进行地震作用计算,但应满足相应的抗震构造措施要求。
7.1.5 结构体系应有明确和合理的地震作用传递途径,应避免因部分结构或构件破坏而导致整个结构丧失抗震能力或对重力荷载的承载能力,应具备必要的抗震承载力、良好的变形能力和消耗地震能量的能力,对可能出现的薄弱部位,应采取措施提高抗震能力。
7.1.6 厂房结构设计应与工艺设计相协调,平面布置宜对称、规则,并应具有良好的整体性,竖向宜规则,结构侧向刚度宜均匀变化,同时应合理布局结构抗侧力体系和结构构件,以满足抗震概念设计的要求。
7.1.7 主厂房结构材料的选择应综合考虑电厂的重要性、抗震设防类别、抗震设防烈度、场地条件、地基、厂房布置等因素,高烈度区宜优先选用抗震性能较好的钢结构。
7.1.8 对常规三列式布置的主厂房结构,当抗震设防烈度6度和7度、Ⅰ~Ⅱ类场地时,主厂房宜采用钢筋混凝土框架结构;当抗震设防烈度7度、Ⅲ~Ⅳ类场地和抗震设防烈度8度、Ⅰ类场地时,主厂房宜采用钢筋混凝土框架-抗震墙结构,也可采用钢结构;抗震设防烈度8 度Ⅱ~Ⅳ类场地时,主厂房宜采用钢结构,结构体系宜选择框架-支撑结构;单机容量1000MW及以上时,主厂房宜采用钢结构,当采用钢筋混凝土结构时应进行专门论证。
7.1.9 抗震设防烈度8度、9度地区的厂房可采用消能减震设计。
条文说明
7.1 一般规定
7.1.1 本条为新增内容,依据现行标准《建筑工程抗震设防分类标准》GB 50223-2008明确了发电厂和变电站中的建(构)筑物抗震设防分类,同时说明了规模较小的乙类建筑允许按丙类建筑设防。这里较小的乙类建筑,一般指单层而且高度不超过12m的规则现浇钢筋混凝土框架结构或钢结构,如单层转运站、继电器室、屋内配电装置室、站用电室等。
7.1.2 本条结合电力设施的具体情况,与现行标准《建筑抗震设计规范》GB 50011--2010 第6. 1. 2条的规定保持一致,确定为强制性条文。本次修订按照现行标准《建筑抗震设计规范》GB 50011-2010的规定,新增了钢结构的抗震等级。表中对钢筋混凝土框架结构等级划分高度界限与现行标准《建筑抗震设计规范》GB 50011-2010保持一致,将原标准的25m和35m统一为24m;框架-抗震墙高度界限由原标准的50m 、60m统一为60m; 增加了大跨度的钢筋混凝土框架结构,其主要原因是随着发电厂机组容量和变电站电压等级的提高,设备体积和重量加大了很多,工艺布置对厂房跨度要求越来越大,这种结构的抗震措施应相应提高。增加了运煤廊道按不同高度划分抗震等级的规定, 6度且高度在30m及以下的结构较原标准适当放宽, 7度、8度30m以上的结构适当提高,同时提出廊道跨度大于24m 抗震等级适当提高的规定。
本次修订依据现行标准《建筑抗震设计规范》GB 50011-2010增加了设置少量抗震墙的钢筋混凝土框架-抗震墙结构抗震等级划分的规定,这种结构在电力设施的建(构)筑物中普遍存在。
7.1.7 本条为新增条文。由于主厂房结构受工艺布置限制,荷载分布极不均匀,结构平面布置和竖向布置都会出现一定的不规则性。而钢结构具有结构延性好、抗震性能优和材料可再生利用的优势,故本标准提出抗震设防区,特别是高烈度区宜优先选用抗震性能较好的钢结构。
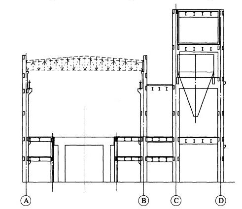
7.1.8 本条为新增条文,“常规三列式布置的主厂房结构”是指由汽机房、除氧间和煤仓间组成的框排架结构,如图2 所示。该布置方式在火力发电厂中普遍被采用。

图2 常规三列式布置的主厂房结构
本条文中关于钢筋混凝土结构厂房的结构选型是根据震害资料、工程经验和主厂房钢筋混凝土结构试验研究确定的。
四川汶川地震的震害调查表明,江油电厂2×330MW+2×300MW 燃煤机组分两期建设,主厂房钢筋混凝凝土结构均采用三列式布置,抗震设防烈度一期、二期分别为6度、7度,汶川地震江油遭遇8 度地震作用,7度设防的主厂房结构(除汽机房的网架屋盖外)基本完好, 6度设防的厂房有轻度破坏。
工程设计经验表明, 7度Ⅲ类场地及以上采用钢筋混凝凝土结构时,当抗震墙(或抗震支撑)的设置因工艺布置的限制无法改变偏向一侧的布置方式时,结构很难满足抗震设计要求,故本标准提出“7度Ⅲ~Ⅳ类场地可采用钢结构”。
2003 年电力行业重点科技攻关项目《火力发电厂主厂房结构抗震设计技术》,针对常规布置主厂房拟动力抗震试验分析研究的结果表明:
(1)单机容量为600MW 三列式布置的钢筋混凝土主厂房结构(图2),在7度抗震设防Ⅱ类场地研究条件下,厂房的横向结构模型在最大输入加速度0.05g时基本处于弹性阶段;在最大输入加速度0.3g,模型结构虽未达到承载力极限,但其整体位移角明显增大、裂缝加剧和出现塑性铰,结构已基本达到屈服状态,结构虽能满足“大震不倒”的设防要求,但整体富裕度不大,结构可满足7度抗震设防的目标。
(2) 横向框排架结构相对于纵向框架-剪力墙结构而言刚度偏小,应增大横向的刚度。结构存在错层、薄弱层、强梁弱柱等问题,对结构抗震不利。
(3) 设防烈度8度及Ⅰ类场地以上时,不应采用常规布置的钢筋混凝土结构。
关于1000MW 级的主厂房,其结构总高度、层高以及设备管道荷载等较600MW机组增加较多,选择钢结构有其优越性。目前, 6度、7度区采用钢筋混凝土结构有在建工程,但缺乏工程经验和实践检验,因此标准提出进行专门论证后确定。